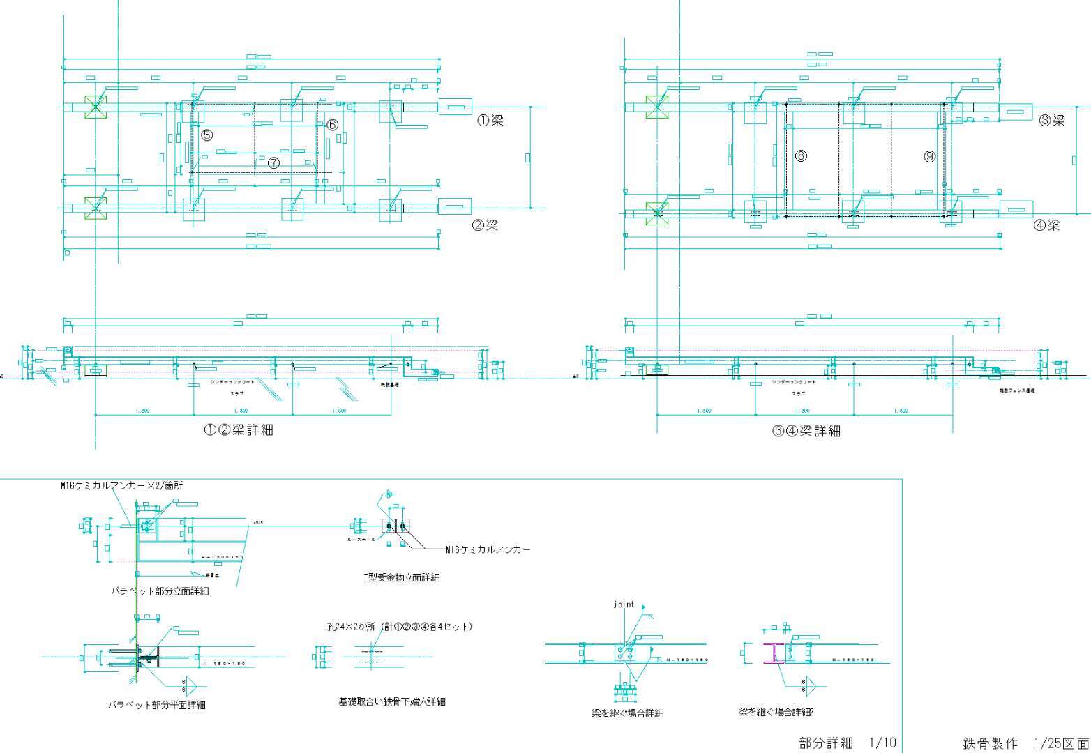
東京の警察署の屋上にキューピクルとパワーコンディショナーの基礎と鉄骨取付を請けました。
既存の解体、墨出し、図面作成、鉄骨作成、鉄骨建方、防水処理までの仕事になります。
前の記事へ
次の記事へ
U字溝作業! 横断側溝の設置作業です!!
2018/07/13
新しいお客さんのPC板のストック状況です。 事前にいろいろ検討しないと難しい作業になります。
2018/06/23
2018/05/29
コラム
社長と社員のブログ